bearsden

arts & crafts inspiration

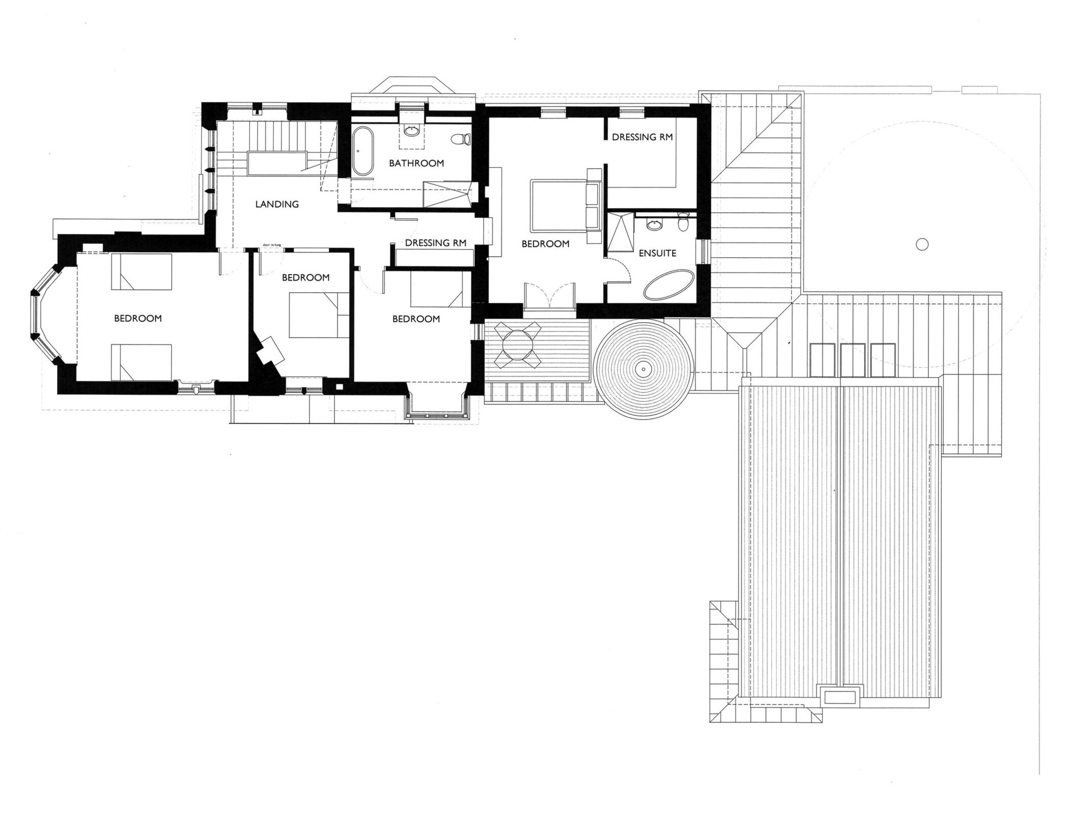
As with many properties of the period, this charming Edwardian house in a Conservation Area needed sensitive upgrading to make it suitable for contemporary family living. The original property, a four bedroom / three reception room house sat within a corner double feu plot that provided opportunity for extension however this had to be designed carefully to not detract from its arts and craft architecture. 

The design involved the full refurbishment of the core rooms of the original house. Where possible historic features were uncovered or re-imagined. In some areas a careful back-to-stone reinstatement was required due to areas of extensive decay caused by historic water ingress. The old kitchen, scullery and butler's pantry were demolished internally and reconstructed to raise the roof and form a new one and a half storey wing with utility room, cloakroom and ensuite guest bedroom downstairs and master bedroom suite above.

A further new extension projects into the rear garden linked by a timber and glass hallway to a new family entrance. This hall leads through to a large open plan kitchen/family room with feature oak beams. The kitchen is Bulthaup by Cameron Interiors and has a side pantry with a secret door. All bathrooms are Porcelanosa.

Externally the house has been re-slated, stonework restored and bespoke hardwood replacement windows fitted throughout. The original hardwood gates were beyond repair and so were replicated by a craftsman and updated with full automation. Further planning consent was obtained for a standalone triple garage with accommodation over.

 

Credits:

Location: Bearsden, Scotland

Architect: Network Five Architecture (Donald Bentley)

Structure: DCF Design Consultants Ltd

Contractor: Client Managed

Photography: Paul Tyagi

Glencoe 10-2.jpg
 
 
Glencoe 6-2.jpg
Glencoe 17-2.jpg
Glencoe 1.jpg
Glencoe 15.jpg
Glencoe 12.jpg
 
 
 
Glencoe 9.jpg
Glencoe 11.jpg
Glencoe 35.jpg
Glencoe 39.jpg
 
 
Glencoe 37.jpg
Glencoe 26.jpg
 
Glencoe 27.jpg
Glencoe 44.jpg
 
 
Glencoe 19.jpg
Glencoe 21.jpg
 
Glencoe 36.jpg
Glencoe 48.jpg
Glencoe 38.jpg
Glencoe 55.jpg
Previous
Previous

the moss, killearn

Next
Next

strathblane